Die EURACON Sp. z o.o. (GmbH), mit Sitz in Słubice - vormals Stadtteil "Dammvorstadt" der Stadt Frankfurt (Oder) - ist die offizielle Generalvertretung der Unternehmensgruppe BRF FRIEDRICHSHAIN GmbH und der DOBNER GUTWERT GmbH für die Republik Polen.

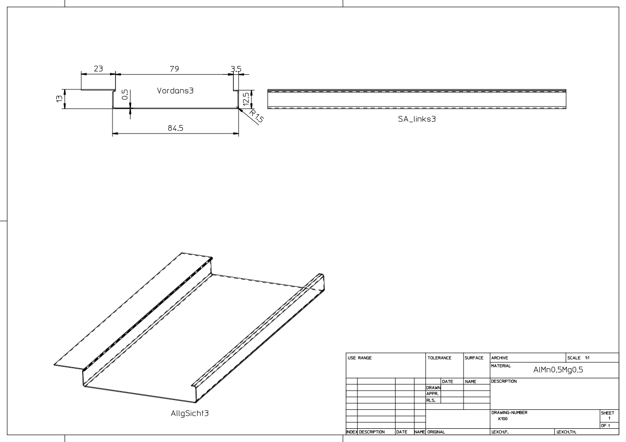
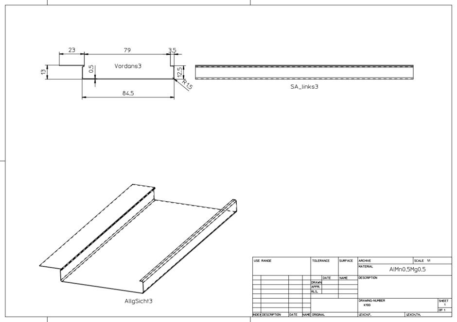
Abgehängte ORIGINAL DOBNER Aluminium-Paneeldecke 
Typ K-100 / KP-100 mit geschlossenen Fugen